THE BLACK HOUSE
COLOGNE
HENRY WILLIAMS MICRO-LOFT
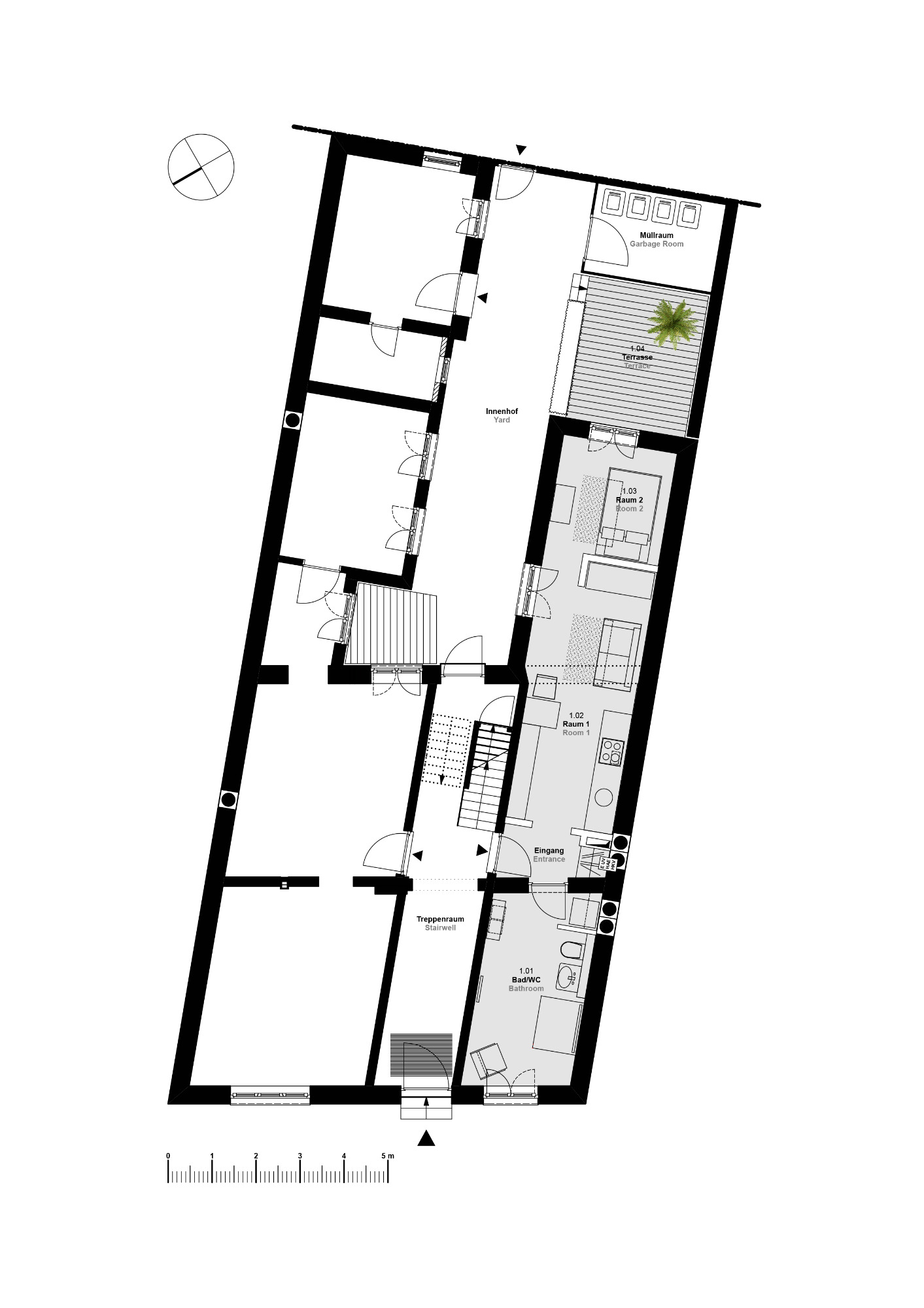
1,5 Zimmer, 1 Bad, 43 m², incl. Terrasse
Optimal für 1 Person
Dieses Micro-Loft ist etwas ganz Besonderes!
Es liegt im Erdgeschoss eines Gründerzeitaltbaus aus dem ausgehenden 19. Jahrhundert. In historischer Bausubstanz offenbart das Apartment zeitgenössische architektonische Raffinesse mit intelligenten Raumbezügen, hochwertigen Materialien, elegantem Licht- und Farbkonzept und liebevoller Ausstattung.
2021 wurde es behutsam unter Berücksichtigung gestalterischer, architekturhistorischer, baumaterieller und gesundheitlicher Kriterien kernsaniert. Das Micro-Loft verfügt über Räume im Vorderhaus zur Straße hin und im Hinterhaus mit eigener Terrasse.
1.450 € / Monat
MAGDALENA MÜLLER-SUITE
2 Zimmer, 1 Bad, 1 WC, 43 m²
Optimal für 1 Person
Diese stilvolle Suite liegt im 1. Obergeschoss des Gründerzeitaltbaus. In historischer Bausubstanz offenbart das Apartment zeitgenössische architektonische Raffinesse mit intelligenten Raumbezügen, hochwertigen Materialien, elegantem Licht- und Farbkonzept und liebevoller Ausstattung. 2022 wurde die Suite behutsam unter Berücksichtigung gestalterischer, architekturhistorischer, baumaterieller und gesundheitlicher Kriterien kernsaniert. Die Suite verfügt über Räume im Vorderhaus zur Straße hin und im Hinterhaus.
1.450 € / Monat
JOSEFINA HENNIS-SUITE
3 Zimmer, 1 Bad, 58 m², incl. Terrasse
Geeignet für 2 Personen
Diese Suite schafft Raumerlebnisse auf mehreren Ebenen!
Sie liegt im 1. Obergeschoss des Gründerzeitaltbaus aus dem ausgehenden 19. Jahrhundert. In historischer Bausubstanz offenbart das Apartment zeitgenössische architektonische Raffinesse mit intelligenten Raumbezügen, hochwertigen Materialien, elegantem Licht- und Farbkonzept und liebevoller Ausstattung. 2022 wurde die Suite behutsam unter Berücksichtigung gestalterischer, architekturhistorischer, baumaterieller und gesundheitlicher Kriterien kernsaniert.






















